Foto leveres af Google Street View og kan være upræcist:
Butik til leje, Odense NV, Rugvang
Rugvang, 5210 Odense NV- Butik til leje
- Ca. 375 m2
- Ca. 53.500 kr. per måned
Rugvang, 5210 Odense NV
- Butik til leje
- Ca. 375 m2
- Ca. 53.500 kr. per måned
Få mere info
Du linkes til en anden portal, som evt. kan kræve betaling eller oprettelse
Butik til leje, Odense NV, Rugvang
Butik til leje i 5210 Odense NV
Tarup Center er et moderne og meget populært butikscenter med 44 butikker, 5 spisesteder og 1 supermarked, med et samlet erhvervsareal på ca. 25.000 m².
Endvidere er der i forbindelse med Tarup Centers parkeringsplads kontorbygning med bl.a. Netto i stueplan samt på 1. og 2. sal læger, tandlæge, køreskole og advokatpraksis på samlet 4.250 m².
Lejemålet ligger ved indgang B med McDonald's, Zizzi og Profil Optik som nærmeste naboer. Foran butikken er Store Torv, hvor der hvert år er masser af sæsonaktiviteter.
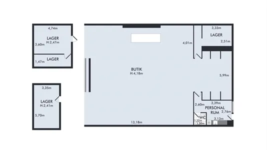
Lejemålet er regulært indrettet med bred facade, stort salgsareal og prøverum bagerst. Til lejemålet er personalefaciliteter og kælder til lager.
De mange butikker spænder bredt og imødekommer ethvert behov. Fra eksklusive modeforretninger til praktiske dagligvarebutikker og specialforretninger, tilbyder Tarup Center en alsidig shopping oplevelse. De tilgængelige offentlige transportmuligheder er fremragende, enten via Letbane, hyppige busforbindelser og bekvem adgang til nærliggende hovedveje.
Tarup Center råder desuden over 600 betalingsfrie p-pladser inkl. ladestandere.
Sagsprospektet vil blive sendt til din mail, men du kan også se det med det samme på nedenstående link.
Tak for din henvendelse. Din besked vil blive behandlet hurtigst muligt.
Vi har noteret dine ønsker.
Vi kontakter dig, så snart der er en ejendom, som matcher dine kriterier.
Tak for din henvendelse.
Vi kontakter dig snarest muligt for at aftale dato og tidspunkt for vurderingen.
Endvidere er der i forbindelse med Tarup Centers parkeringsplads kontorbygning med bl.a. Netto i stueplan samt på 1. og 2. sal læger, tandlæge, køreskole og advokatpraksis på samlet 4.250 m².
Lejemålet ligger ved indgang B med McDonald's, Zizzi og Profil Optik som nærmeste naboer. Foran butikken er Store Torv, hvor der hvert år er masser af sæsonaktiviteter.
Lejemålet er regulært indrettet med bred facade, stort salgsareal og prøverum bagerst. Til lejemålet er personalefaciliteter og kælder til lager.
De mange butikker spænder bredt og imødekommer ethvert behov. Fra eksklusive modeforretninger til praktiske dagligvarebutikker og specialforretninger, tilbyder Tarup Center en alsidig shopping oplevelse. De tilgængelige offentlige transportmuligheder er fremragende, enten via Letbane, hyppige busforbindelser og bekvem adgang til nærliggende hovedveje.
Tarup Center råder desuden over 600 betalingsfrie p-pladser inkl. ladestandere.
Tak for din interesse i ejendommen
Sagsprospektet vil blive sendt til din mail, men du kan også se det med det samme på nedenstående link.
Tak for din henvendelse. Din besked vil blive behandlet hurtigst muligt.
Få besked om nye ejendomme før andre
Tak for din tilmelding
Vi har noteret dine ønsker.
Vi kontakter dig, så snart der er en ejendom, som matcher dine kriterier.
Få en uvildig vurdering af din erhvervsejendom
Tak for din henvendelse.
Vi kontakter dig snarest muligt for at aftale dato og tidspunkt for vurderingen.
Information og data
Dette butikslejemål ligger på Rugvang i Odense NV. Odense NV har postnummeret 5210, og ligger i kommunen Odense, som ligger i Odense. Lokalet er i alt 374 m2. Lejepris: Ca. 641.000 kr. per år.